Casa Grecia, un oasis en el centro de Sao Paulo
Hoy hablamos de arquitectura.
Esta casa, a pesar de su nombre, no se encuentra en ninguna fantástica isla griega; sino en la caótica ciudad brasileña de Sao Paulo.
Se trata de una construcción de volúmenes puros y líneas rectas, en una de las zonas más concurridas de la ciudad brasileña, y ha sido diseñada por el arquitecto Isay Weinfeld, al que tengo que reconocer que descubrí hace poco, y del cual estoy segura de que os hablaré en más ocasiones.
Según la revista de diseño británica Wallpaper, la casa Grecia se encuentra entre las 5 mejores viviendas privadas del 2010, así que bien merece la pena un recorrido por sus estancias.
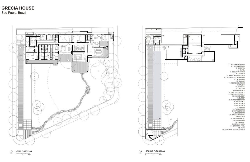
Si pasamos a la parcela a través de sus puertas de entrada, nos encontramos con un complejo en calma, compuesto de cuatro cajas de hormigón rectangulares que conforman la vivienda; y con un inmenso jardín interno.
Incluye cubiertas al aire libre y patios, y una larguísima piscina que nos hace olvidarnos de que nos encontramos en el centro de una macrópolis.
No nos olvidamos de sus interiores, que están decorados con obras de arte y fantásticas piezas modernistas.
Y a vosotros, ¿os ha gustado la vivienda tanto como a mi?








